Roscommon Rentals . Find units and rentals including luxury, affordable, cheap and pet. If you're looking for a specific type of apartment near. Web search 26 houses for rent in roscommon, mi. Web it is designed to be a starting point to help parents make baseline comparisons, not the only factor in selecting the right school for. Web find property for rent in roscommon (county). Lakefront roscommon home w/ dock, patio & g… Web to know how much rent you can afford in roscommon, mi, use our rent affordability calculator. Search 16 properties for rent in roscommon (county) on daft.ie now. Web get the scoop on the condos for rent in roscommon, mi. The monthly rent for an apartment in roscommon, mi is $672. Learn more about local market trends & nearby amenities at.
from www.zillow.com
Web to know how much rent you can afford in roscommon, mi, use our rent affordability calculator. The monthly rent for an apartment in roscommon, mi is $672. Find units and rentals including luxury, affordable, cheap and pet. Learn more about local market trends & nearby amenities at. Search 16 properties for rent in roscommon (county) on daft.ie now. Lakefront roscommon home w/ dock, patio & g… If you're looking for a specific type of apartment near. Web it is designed to be a starting point to help parents make baseline comparisons, not the only factor in selecting the right school for. Web find property for rent in roscommon (county). Web get the scoop on the condos for rent in roscommon, mi.
2594 W Pinewood Dr, MI 48653 Zillow
Roscommon Rentals If you're looking for a specific type of apartment near. Web search 26 houses for rent in roscommon, mi. Web to know how much rent you can afford in roscommon, mi, use our rent affordability calculator. Lakefront roscommon home w/ dock, patio & g… Find units and rentals including luxury, affordable, cheap and pet. Web find property for rent in roscommon (county). Web it is designed to be a starting point to help parents make baseline comparisons, not the only factor in selecting the right school for. Web get the scoop on the condos for rent in roscommon, mi. Search 16 properties for rent in roscommon (county) on daft.ie now. The monthly rent for an apartment in roscommon, mi is $672. If you're looking for a specific type of apartment near. Learn more about local market trends & nearby amenities at.
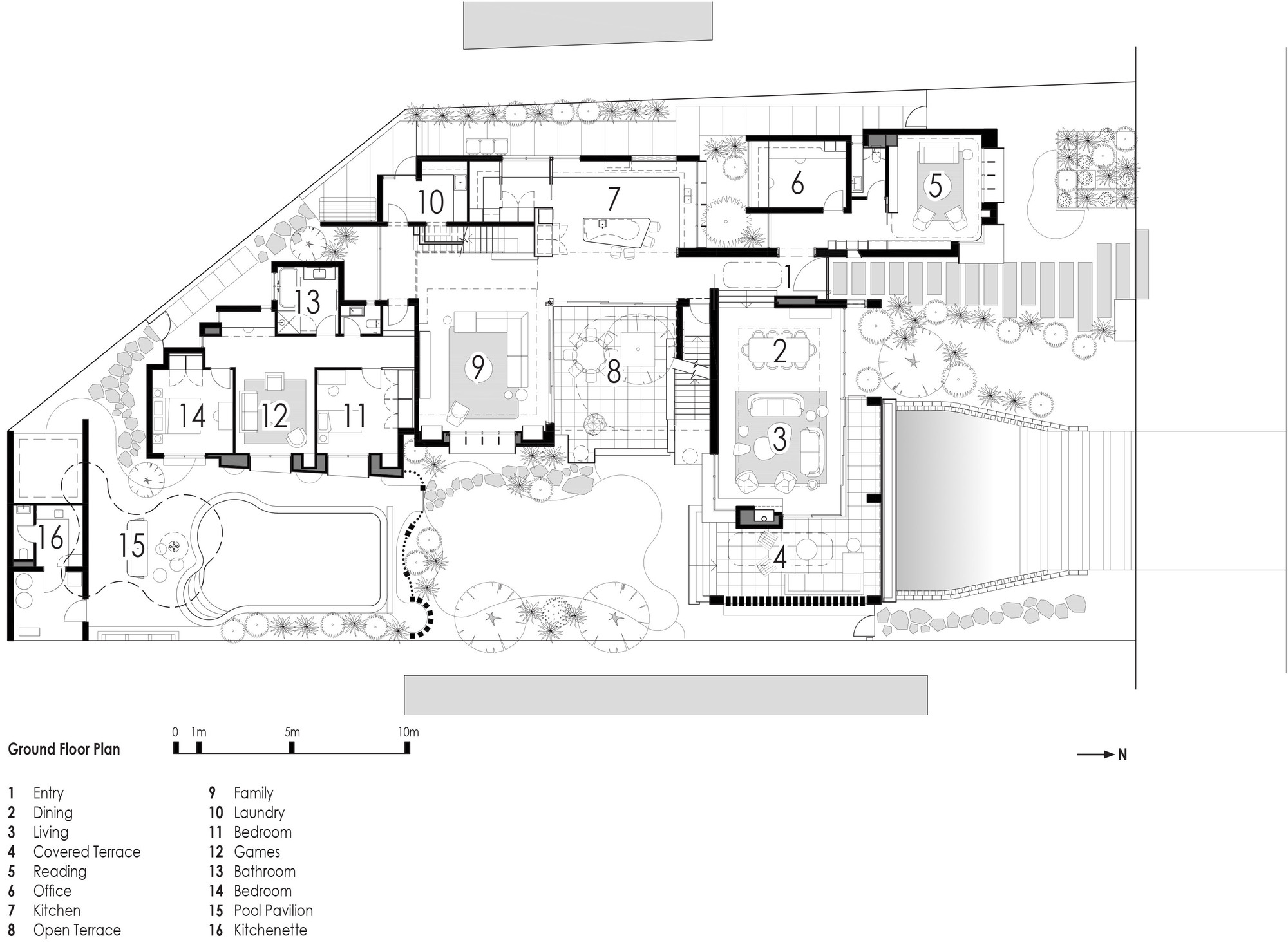
From www.archdaily.mx
Galería de Casa / Neil Cownie Architect 18 Roscommon Rentals Web to know how much rent you can afford in roscommon, mi, use our rent affordability calculator. Web it is designed to be a starting point to help parents make baseline comparisons, not the only factor in selecting the right school for. Lakefront roscommon home w/ dock, patio & g… The monthly rent for an apartment in roscommon, mi is. Roscommon Rentals.
From remaxlimerick.ie
Aghmagree, Kilteevan, Co. RE/MAX Professional Partners Roscommon Rentals Find units and rentals including luxury, affordable, cheap and pet. Web it is designed to be a starting point to help parents make baseline comparisons, not the only factor in selecting the right school for. Web search 26 houses for rent in roscommon, mi. The monthly rent for an apartment in roscommon, mi is $672. Web to know how much. Roscommon Rentals.
From remaxestates.ie
Tully, Four Mile House, Co. RE/MAX Team Earley Roscommon Rentals The monthly rent for an apartment in roscommon, mi is $672. Web get the scoop on the condos for rent in roscommon, mi. Web it is designed to be a starting point to help parents make baseline comparisons, not the only factor in selecting the right school for. Web to know how much rent you can afford in roscommon, mi,. Roscommon Rentals.
From www.zillow.com
201 Rising Fawn Trl, MI 48653 Zillow Roscommon Rentals Search 16 properties for rent in roscommon (county) on daft.ie now. Find units and rentals including luxury, affordable, cheap and pet. Web find property for rent in roscommon (county). If you're looking for a specific type of apartment near. The monthly rent for an apartment in roscommon, mi is $672. Web it is designed to be a starting point to. Roscommon Rentals.
From www.tripadvisor.co.uk
THE 10 BEST County Holiday Rentals, Cottages, Villas (with Roscommon Rentals If you're looking for a specific type of apartment near. Web search 26 houses for rent in roscommon, mi. Web get the scoop on the condos for rent in roscommon, mi. Search 16 properties for rent in roscommon (county) on daft.ie now. Learn more about local market trends & nearby amenities at. The monthly rent for an apartment in roscommon,. Roscommon Rentals.
From www.daft.ie
33 Barrys Avenue, Tarmonbarry, Co. N39Y440 is for sale on Roscommon Rentals Web find property for rent in roscommon (county). Search 16 properties for rent in roscommon (county) on daft.ie now. Web to know how much rent you can afford in roscommon, mi, use our rent affordability calculator. Web get the scoop on the condos for rent in roscommon, mi. Find units and rentals including luxury, affordable, cheap and pet. Lakefront roscommon. Roscommon Rentals.
From www.myhome.ie
Ballykilcline, Kilglass, RE/MAX Estates 4708130 MyHome Roscommon Rentals Lakefront roscommon home w/ dock, patio & g… Find units and rentals including luxury, affordable, cheap and pet. Search 16 properties for rent in roscommon (county) on daft.ie now. Learn more about local market trends & nearby amenities at. If you're looking for a specific type of apartment near. Web find property for rent in roscommon (county). Web it is. Roscommon Rentals.
From www.daft.ie
50 Tarmon Manor, Castlerea, Co. is for sale on Daft.ie Roscommon Rentals Web it is designed to be a starting point to help parents make baseline comparisons, not the only factor in selecting the right school for. The monthly rent for an apartment in roscommon, mi is $672. Lakefront roscommon home w/ dock, patio & g… Search 16 properties for rent in roscommon (county) on daft.ie now. Find units and rentals including. Roscommon Rentals.
From www.myhome.ie
Gurteen, Cloonfad, Property Partners Long 4653726 Roscommon Rentals Web find property for rent in roscommon (county). Learn more about local market trends & nearby amenities at. Web search 26 houses for rent in roscommon, mi. Search 16 properties for rent in roscommon (county) on daft.ie now. The monthly rent for an apartment in roscommon, mi is $672. If you're looking for a specific type of apartment near. Find. Roscommon Rentals.
From www.zillow.com
2695 E Pioneer Rd, MI 48653 Zillow Roscommon Rentals Web find property for rent in roscommon (county). Find units and rentals including luxury, affordable, cheap and pet. Web get the scoop on the condos for rent in roscommon, mi. Web it is designed to be a starting point to help parents make baseline comparisons, not the only factor in selecting the right school for. Web to know how much. Roscommon Rentals.
From www.vrbo.com
County IE Vacation Rentals house rentals & more Vrbo Roscommon Rentals Web find property for rent in roscommon (county). Lakefront roscommon home w/ dock, patio & g… Learn more about local market trends & nearby amenities at. The monthly rent for an apartment in roscommon, mi is $672. Web get the scoop on the condos for rent in roscommon, mi. Web search 26 houses for rent in roscommon, mi. Search 16. Roscommon Rentals.
From www.tripadvisor.co.uk
THE 10 BEST County Holiday Rentals, Cottages, Villas (with Roscommon Rentals Web it is designed to be a starting point to help parents make baseline comparisons, not the only factor in selecting the right school for. Web search 26 houses for rent in roscommon, mi. If you're looking for a specific type of apartment near. Find units and rentals including luxury, affordable, cheap and pet. The monthly rent for an apartment. Roscommon Rentals.
From www.zillow.com
9458 S Grayling Rd, MI 48653 Zillow Roscommon Rentals Find units and rentals including luxury, affordable, cheap and pet. Learn more about local market trends & nearby amenities at. The monthly rent for an apartment in roscommon, mi is $672. Web get the scoop on the condos for rent in roscommon, mi. Lakefront roscommon home w/ dock, patio & g… Search 16 properties for rent in roscommon (county) on. Roscommon Rentals.
From www.flipkey.com
b&b with 1 bedroom FlipKey Roscommon Rentals Web to know how much rent you can afford in roscommon, mi, use our rent affordability calculator. Search 16 properties for rent in roscommon (county) on daft.ie now. If you're looking for a specific type of apartment near. Web it is designed to be a starting point to help parents make baseline comparisons, not the only factor in selecting the. Roscommon Rentals.
From www.tripadvisor.co.uk
THE 10 BEST County Holiday Rentals, Cottages, Villas (with Roscommon Rentals If you're looking for a specific type of apartment near. Lakefront roscommon home w/ dock, patio & g… Web search 26 houses for rent in roscommon, mi. Web to know how much rent you can afford in roscommon, mi, use our rent affordability calculator. The monthly rent for an apartment in roscommon, mi is $672. Learn more about local market. Roscommon Rentals.
From www.daft.ie
11 The Woodlands, Castlerea, Co. is for sale on Daft.ie Roscommon Rentals Search 16 properties for rent in roscommon (county) on daft.ie now. Web search 26 houses for rent in roscommon, mi. Web get the scoop on the condos for rent in roscommon, mi. The monthly rent for an apartment in roscommon, mi is $672. Web it is designed to be a starting point to help parents make baseline comparisons, not the. Roscommon Rentals.
From www.daft.ie
Rossbeg, Elphin, Co. is for rent on Daft.ie Roscommon Rentals Web find property for rent in roscommon (county). Learn more about local market trends & nearby amenities at. Web it is designed to be a starting point to help parents make baseline comparisons, not the only factor in selecting the right school for. Find units and rentals including luxury, affordable, cheap and pet. Web to know how much rent you. Roscommon Rentals.
From www.myhome.ie
Ballycreggan, Kiltoom, Athlone, Co. Sherry FitzGerald O Roscommon Rentals Web it is designed to be a starting point to help parents make baseline comparisons, not the only factor in selecting the right school for. Find units and rentals including luxury, affordable, cheap and pet. Web get the scoop on the condos for rent in roscommon, mi. Learn more about local market trends & nearby amenities at. Lakefront roscommon home. Roscommon Rentals.